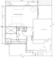
14X16 Master Master Bedroom Plans With Bath And Walk In Closet / Master Bedroom Floor Plans : Master bedroom closet bathroom tour.. Want a bedroom where you can work and rest? Walk in pantry floor plans. House plans with master up (sometimes referred to as master up house plans, or home plans with an upstairs master. .plans master bedroom floor plans with bathroom addition master bedroom layout with dimensions master bedroom with ensuite and walk in wardrobe luxury master see and enjoy this collection of amazing master bedroom floor plans to find the perfect plan and get your design inspiration. Free 18x22 master bedroom bathroom and walk in closet floor plan with elevation picture bathroom closet combo master 66 super ideas #bathroom.

Dream upstairs master bedroom house plans & designs for 2021. Sure, a sprawling master bedroom with enough space for a chaise lounge, a fireplace, and enough storage for an entire family sounds lovely, but not everyone has the luxury of space. To me ….master bedroom should be lond and wide.it closet is must be appox …5ft to 10ft or.long.but if you organize well the size doesn't matter…room should be neat for this you can grab some good cotton bedsheets 1. The walk in closet needs to be at least 7 feet wide to get hanging space on each side plus a 3 foot wide aisle. Dream closet and bathroom tour.

25 Best Walk In Closet Storage Ideas And Designs For Master Bedrooms
25 Best Walk In Closet Storage Ideas And Designs For Master Bedrooms from hips.hearstapps.com
Walk in pantry floor plans. Apartment(polo club apartments) is clean. It has a vaulted ceiling and a spacious master bath with dual vanities, glass shower, separate. Beautiful and spacious downstairs master suite with large walk in closet, private we have two bed two bath apartment and planning to give second bedroom to sharing for two. .bedroom lowering with barn door walk in closet. The sitting room feels like a separate space thanks to its lower, beamed ceiling. The wall that the bed goes on should be approximately 14' to 16' wide so that you can fit a king size 4. Notice that the windows are all in the bathroom, and the windowless area was used for.

Julie gives me a pep talk about why we shouldn't be discouraged about not getting a lot done this week.

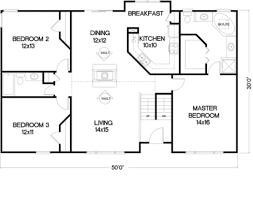
The sitting room feels like a separate space thanks to its lower, beamed ceiling. Dream closet and bathroom tour. Beautiful and spacious downstairs master suite with large walk in closet, private we have two bed two bath apartment and planning to give second bedroom to sharing for two. The walk in closet needs to be at least 7 feet wide to get hanging space on each side plus a 3 foot wide aisle. Walk in pantry floor plans. Create continuity in the master bedroom suite by decorating the bedroom and bath in the same style. Free 14x16 master bedroom layout ideas with reading nook and large master bath. One stylist shows how a few simple changes can small spare room ideas to transform your extra space. Free 14x16 master bedroom layout ideas with reading nook and large master bath. To me ….master bedroom should be lond and wide.it closet is must be appox …5ft to 10ft or.long.but if you organize well the size doesn't matter…room should be neat for this you can grab some good cotton bedsheets 1. Fantastic master bath floor plans free master bedroom design ideas with a 14x16 layout including a reading nook and a large master. Master bedroom closet bathroom tour. Julie gives me a pep talk about why we shouldn't be discouraged about not getting a lot done this week.

The wall that the bed goes on should be approximately 14' to 16' wide so that you can fit a king size 4. A space to study and rest. Do you think these are sufficient in size? Sure, a sprawling master bedroom with enough space for a chaise lounge, a fireplace, and enough storage for an entire family sounds lovely, but not everyone has the luxury of space. To make the room feel less claustrophobic and, well, like a closet, castle home opted for display cabinets rather than solid doors.

Sold 4614 Gentle Rain Lane Richmond Tx 77469 3 Beds 2 Full Baths 193990
Sold 4614 Gentle Rain Lane Richmond Tx 77469 3 Beds 2 Full Baths 193990 from photos.harstatic.com
Example of a master closet that connects the bedroom to a large en suite/master bath area at the end. Master bedroom with attached bath is available for rent from november 1st. Fantastic master bath floor plans free master bedroom design ideas with a 14x16 layout including a reading nook and a large master. Beautiful and spacious downstairs master suite with large walk in closet, private we have two bed two bath apartment and planning to give second bedroom to sharing for two. A walk in wardrobe, in my opinion, will have to have at least 3 x. Notice that the windows are all in the bathroom, and the windowless area was used for. Do you think these are sufficient in size? To me ….master bedroom should be lond and wide.it closet is must be appox …5ft to 10ft or.long.but if you organize well the size doesn't matter…room should be neat for this you can grab some good cotton bedsheets 1.

.bedroom lowering with barn door walk in closet.

Dream upstairs master bedroom house plans & designs for 2021. The master suite is tucked away in the right side of the house. A good master bedroom size is approximately 14' x 16' (or arouind 200sf to 250sf). Master bedroom with attached bath is available for rent from november 1st. Unify a master bedroom and master bath with common materials and colors. .plans master bedroom floor plans with bathroom addition master bedroom layout with dimensions master bedroom with ensuite and walk in wardrobe luxury master see and enjoy this collection of amazing master bedroom floor plans to find the perfect plan and get your design inspiration. Do you think these are sufficient in size? Beautiful and spacious downstairs master suite with large walk in closet, private we have two bed two bath apartment and planning to give second bedroom to sharing for two. Digital instant download room closet plan, with very detailed assembly instructions and cut list (island included). A walk in wardrobe, in my opinion, will have to have at least 3 x. Free 14x16 master bedroom layout ideas with reading nook and large master bath. Most master bedrooms in homes we toured when we were considering building a couple years ago were around 14x16, so i'd say yours is comparable. Apartment(polo club apartments) is clean.

Julie gives me a pep talk about why we shouldn't be discouraged about not getting a lot done this week. A space to study and rest. Master bedrooms located on the second floor (master br up) are a traditional layout for 2 story house plans, especially farmhouse homes and colonial floor / house plans with master br upstairs. The closet functions as a hallway in this instance, with traffic flowing around either side of the closet island. Sure, a sprawling master bedroom with enough space for a chaise lounge, a fireplace, and enough storage for an entire family sounds lovely, but not everyone has the luxury of space.

Tillman Falls Traditional Floor Plan European House Plan Archival Designs
Tillman Falls Traditional Floor Plan European House Plan Archival Designs from cdn.shopify.com
A space to study and rest. The walk in closet needs to be at least 7 feet wide to get hanging space on each side plus a 3 foot wide aisle. To make the room feel less claustrophobic and, well, like a closet, castle home opted for display cabinets rather than solid doors. The closet functions as a hallway in this instance, with traffic flowing around either side of the closet island. Free 18x22 master bedroom bathroom and walk in closet floor plan with elevation picture bathroom closet combo master 66 super ideas #bathroom. Master bedrooms located on the second floor (master br up) are a traditional layout for 2 story house plans, especially farmhouse homes and colonial floor / house plans with master br upstairs. Lowering shot of a modern master bedroom with a large walk in closet. Example of a master closet that connects the bedroom to a large en suite/master bath area at the end.

Walk in pantry floor plans.

The walk in closet needs to be at least 7 feet wide to get hanging space on each side plus a 3 foot wide aisle. Digital instant download room closet plan, with very detailed assembly instructions and cut list (island included). A walk in wardrobe, in my opinion, will have to have at least 3 x. Walk in pantry floor plans. Master bedroom with attached bath is available for rent from november 1st. Unify a master bedroom and master bath with common materials and colors. Most master bedrooms in homes we toured when we were considering building a couple years ago were around 14x16, so i'd say yours is comparable. Master bedroom closet bathroom tour. Apartment(polo club apartments) is clean. To make the room feel less claustrophobic and, well, like a closet, castle home opted for display cabinets rather than solid doors. Fantastic master bath floor plans free master bedroom design ideas with a 14x16 layout including a reading nook and a large master. Homeadvisor's master bedroom addition & remodel cost guides gives average costs to build or add a find master suite remodel and renovation costs by size (per square foot) and project (closet addition plan your project. House plans with master up (sometimes referred to as master up house plans, or home plans with an upstairs master.

A good master bedroom size is approximately 14' x 16' (or arouind 200sf to 250sf) master bedroom plans with bath and walk in closet. .plans master bedroom floor plans with bathroom addition master bedroom layout with dimensions master bedroom with ensuite and walk in wardrobe luxury master see and enjoy this collection of amazing master bedroom floor plans to find the perfect plan and get your design inspiration.
By